Характеристики

  • Комнат2
  • Площадь56
  • Этаж5 / 5
  • Тип планировкиРаздельные комнаты
  • Тип зданияНовострой
  • Тип стенКирпичный
  • Тип оконПластиковые
  • ОтоплениеИндивидуальное
  • Лифт есть
  • Паркинг есть

Описание

ВЛАСНИК, без комісії
Житловий Комплекс бІчна вул Стрийської Автовокзал
56,4м2 620дол/м2 Тераса 15м Зелений район
*ПЕРША ЧЕРГА будинок збудований,зашклений та утеплений
*ГАРНА ЦІНА - 620дол/м2 35000дол

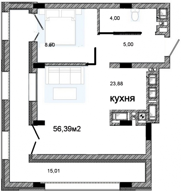
Площа: 56,39м2 ( по плануванню окрема спальня та кухня-вітальня 24,14м або 2 кім 15м та 8,5м та окрема кухня 9м, ванна кімната 4м, коридор 5м, велика тераса 15м2 )
Панорамні вікна.

*Мною був укладений нотаріальний договір купна майнових прав зі 100% оплатою на рахунок забудовника в Ощадбанку та оплатою 1% мита у нотаріуса.
В договорі вартість прописана в гривнях та еквівалент в доларах.

Опалення: Індивідуальне котел
Поверх: 5. Є ЛІФТ.
Максимальне наповнення від забудовника: чорнова штукатурка, стяжка, котел, радіатори, панорамні вікна, лічильники.

Переуступка, здача ЖК оголошена на кінець 2025 рік.

Малоповерховий житловий комплекс комфорт-класу.
У кожному будинку відкриті тераси зі скляними огорожами. Проектом передбачено об'єкти комерційної інфраструктури, місця для відпочинку, дитячі та спортивні майданчики, а також стоянка для автомобілів мешканців.

Доїзд - 8 хв до центрального автовокзалу, 20 хв до залізничного вокзалу,
10 хв - стадіон Арена-Львів ( де також проводять концерти)
Найближчі 2 муніципальні садки - 7-9 хв,
в пішому доступі школа - 10хв, стадіон , футбольний клуб, озеро.

В районі знаходяться ТРЦ King Cross Leopolis, Епіцент , Ашан, Victoria Gardens, недалеко фермерський оптовий ринок Шувар.

Связь с продавцом

Svitlana (собственник)

Местоположение