Характеристики

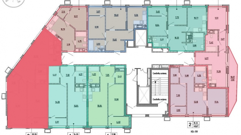
  • Комнат3
  • Площадь70
  • Этаж16 / 16
  • Тип планировкиРаздельные комнаты
  • Тип зданияНовострой
  • Тип стенКирпичный
  • Тип оконПластиковые
  • ОтоплениеАвтономное
  • Лифт есть
  • Паркинг есть
  • Раздельный санузел есть

Описание

* ВЛАСНИК Квартира 70м2 807дол/м2 Ціна дешевше ніж в забудовника Без комісії .*

* У нотаріуса укладений договір купна майнових прав зі 100% оплатою на рахунок забудовника в Ощадбанку.
В договорі прописана вартість квартири в гривнях та еквівалент в доларах.

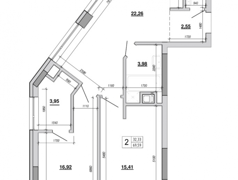
* Світла квартира 70м2 з можливістю вільного планування, яка має вікна на 3 сторони та гарний краєвид

* ЖК на Величковського це новобудова комфорт класу, складається з монолітно-каркасного будинку на 1 під'їзд зі стінами з цегли з утепленням з підземними та наземними паркінгами.

* Максимальне наповнення від забудовника: стяжка, штукатурка, радіатори, МП вікна, двері, лічильник тепла, лічильники, комунікації заведені в квартиру.

* Опалення - економна власна газова котельня з поквартирними лічильниками тепла та регуляцією тепла на радіаторах, підключений власний генератор.
Газ для дахової котельні дешевший ніж для індивідуального споживача зі своїм власним котлом.

* Розташований 7, 5км до Оперного Театру в оточенні зелені ( бічна вул Шевченка ),
в межах пішої доступності озеро на Торфах

* Гарна ціна 807дол/м2 56500дол ( ціна в останніх квартир в забудовника 48000грн/м2 )

* Багато вікон - можливе різне планування - або 2 великі кімнати 20м2 та 21м2
або 3 кімнати 20м2, 11м2 та 10м2
* Кухня-вітальня 19м2 з панорамними вікнами
* Ванна 6м2 з панорамним вікном та окремий туалет з коридору

* Підземні та наземні паркінги
* Зелена околиця
* Дитячий майданчик, зони відпочинку
* Здача будинку оголошена на 2025 рік.

* Розвинута інфраструктура - поруч АТБ, дитячий садок, школа, амбулаторія сімейної медицини, 2 церкви, спортивний майданчик, магазини Ева, Рукавичка, піцерія, кав'ярні, Нова та Укрпошта, рекреаційна зона, лісопарк, озеро, зупинки, жд станція..

* Гарне сполучення - недалеко будинку зупинка ( курсують 5 маршруток) та зупинка при вулиці Шевченка ( курсують 36 маршруток)

вул Величковського 7А ( бічна вул. Шевченка )

Связь с продавцом

Svitlana (собственник)

Местоположение