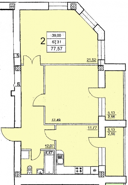
Характеристики

  • Комнат2
  • Площадь77
  • Этаж8 / 9
  • Тип планировкиРаздельные комнаты
  • Тип зданияНовострой
  • Тип стенКирпичный
  • Тип оконПластиковые
  • ОтоплениеАвтономное
  • Раздельный санузел есть
  • Лифт есть
  • Паркинг есть

Описание

Продается 2-хкомнатная квартира в новом кирпичном доме в Малиновском районе, на ул. Ефимова. Площадь 77.57 квм, кухня 12 квм, 2 балкона, просторные раздельные комнаты. Квартира на 8-м этаже в 10-тиэтажном доме. Закрытая охраняемая территория с паркингом и детскими площадками. Рядом школы, детские сады, парки, супермаркеты, магазины, рынки. Удобная транспортная развязка.

Связь с продавцом

Таисия (риелтор)

Местоположение