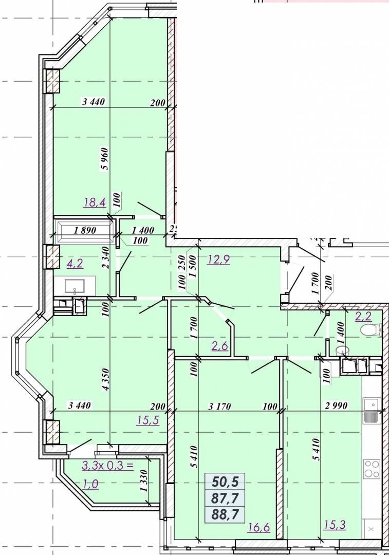
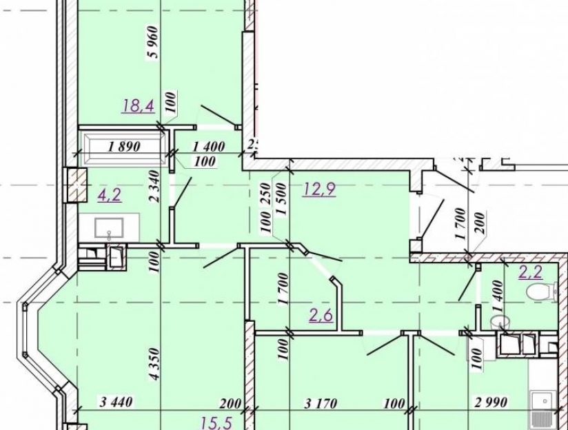
Характеристики

  • Комнат3
  • Площадь89
  • Этаж13 / 17

Описание

Продается просторная трехкомнатная квартира в новом доме в районе Ивановского моста. Общая площадь 89 кв. м. Все комнаты раздельные. Состояние от строителей. Дом сдан, можно заходить делать ремонт. Закрытая территория. Отличное месторасположение, хорошая транспортная развязка. Рядом супермаркет.

Связь с продавцом

Мардирос Марианна Михайловна (агенство)

Местоположение