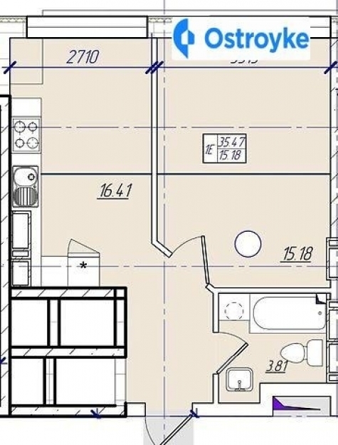
Характеристики

  • Комнат1
  • Площадь37
  • Этаж11 / 22

Описание

1 ком.кв. 36.58 м2 на 10-ом этаже нового жилого комплекса.
Расположен ЖК на ул. Академика Филатова 1 в районе площади Толбухина.
-Закрытая и охраняемая территория
-Благоустроенная зона отдыха с детской площадкой
-Развитая инфраструктура по периметру и внутри жилого комплекса
-Двор без машин
В квартире выполнено панорамное остекление
от пола до потолка.
Из окон открывается вид на парковую зону.
Цена от застройщика!


Дополнительная информация:

Тип стен - монолит
Отопление - централизованное


Теги сообщения:

продажа квартир ул. Академика Филатова, продажа квартир Одесса, КА AURA APART в Киевском районе, продажа однокомнатных квартир Одесса, купить квартиру, стоимость квартир в Одессе, продажа квартир в районе Киевском


Связь с продавцом

Первый банк недвижимости (застройщик)

Местоположение