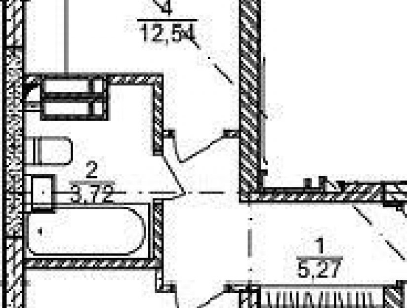
Характеристики

  • Комнат1
  • Площадь38
  • Этаж4 / 8

Описание

Квартира - место, где вы набираетесь сил, отвлекаетесь от всех забот. Поэтому у нас трезвый взгляд на то, как надо использовать пространство в квартире. На наших планах вы не найдете бессмысленно долгого нефункционального коридора или огромной спальни, где можно поставить только кровать и шкаф. Квартира - это больше, чем место для сна. Поэтому мы инвестируем квадратные метры туда, где вы действительно будете жить - гостиная, кухня, кабинет или детская - у нас целых 30 вариантов планировки. Рассрочка до 2 лет без привязки к гривне. 7 км от Киева, на маршрутке 15 минут до академгородка


Дополнительная информация:

Тип стен - пеноблок
Отопление - индивидуальное


Теги сообщения:

куплю квартиру, купить 1 комнатную квартиру Ирпень, стоимость квартир в Ирпене, продажа квартиры Ирпень


Связь с продавцом

Дмитрий Novobud (риелтор)

Местоположение