Характеристики

  • Комнат5
  • Площадь131

Описание

Продаж нового будинку від власника.
Продається просторий двоповерховий будинок у с. Крюківщина з сучасним плануванням. Чудовий варіант приватного будинку для проживання в передмісті Києва. Будинок знаходиться в дубовому гаю - урочище «Золотий дуб». Розвинена інфраструктура в пішій доступності Макдональдс, Сільпо, Спортивний клуб, ресторани, банки та багато іншого. Будинок розташований на ділянці площею 4 сотки, яка знаходиться в тихому затишному місці. Вулиця забудована, поруч нова котеджна забудова, приємні сусіди. У кухні встановлений великий склопакет з дверима для виходу на задній двір, де можливо облаштувати терасу чи зону барбекю.
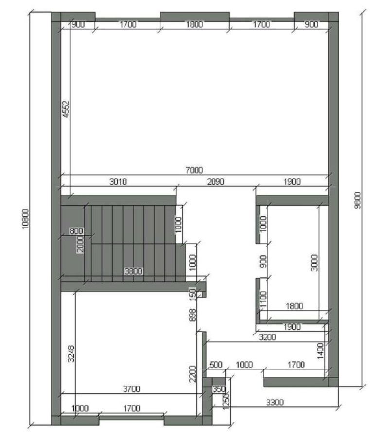
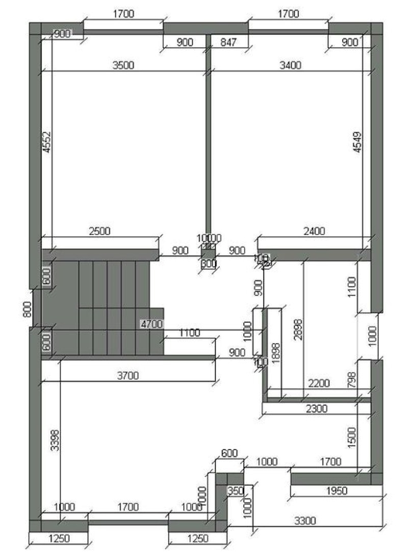
Будинок збудований з піноблоку, утеплений. Площа будинку 131 кв.м. + 3 кв.м балкон. Висота стелі на першому поверсі 3 м. на другому – 2,7 м.

На 1 поверсі знаходиться:
- простора кухня-вітальня 31,5 кв.м;
- санвузол - 5,4 кв.м;
- кімната - 12 кв.м;

На 2 поверсі знаходиться:
- кімната - 16 кв.м;
- кімната - 15 кв.м;
- кімната - 18,5 кв.м;
- санвузол - 6 кв.м;
- балкон – 3,3 кв.м.

Комунікації – електрика, своя свердловина 56 м., каналізація (два септики з переливом).

Связь с продавцом

Дмитро (собственник)

Местоположение