Характеристики

  • Кімнат2
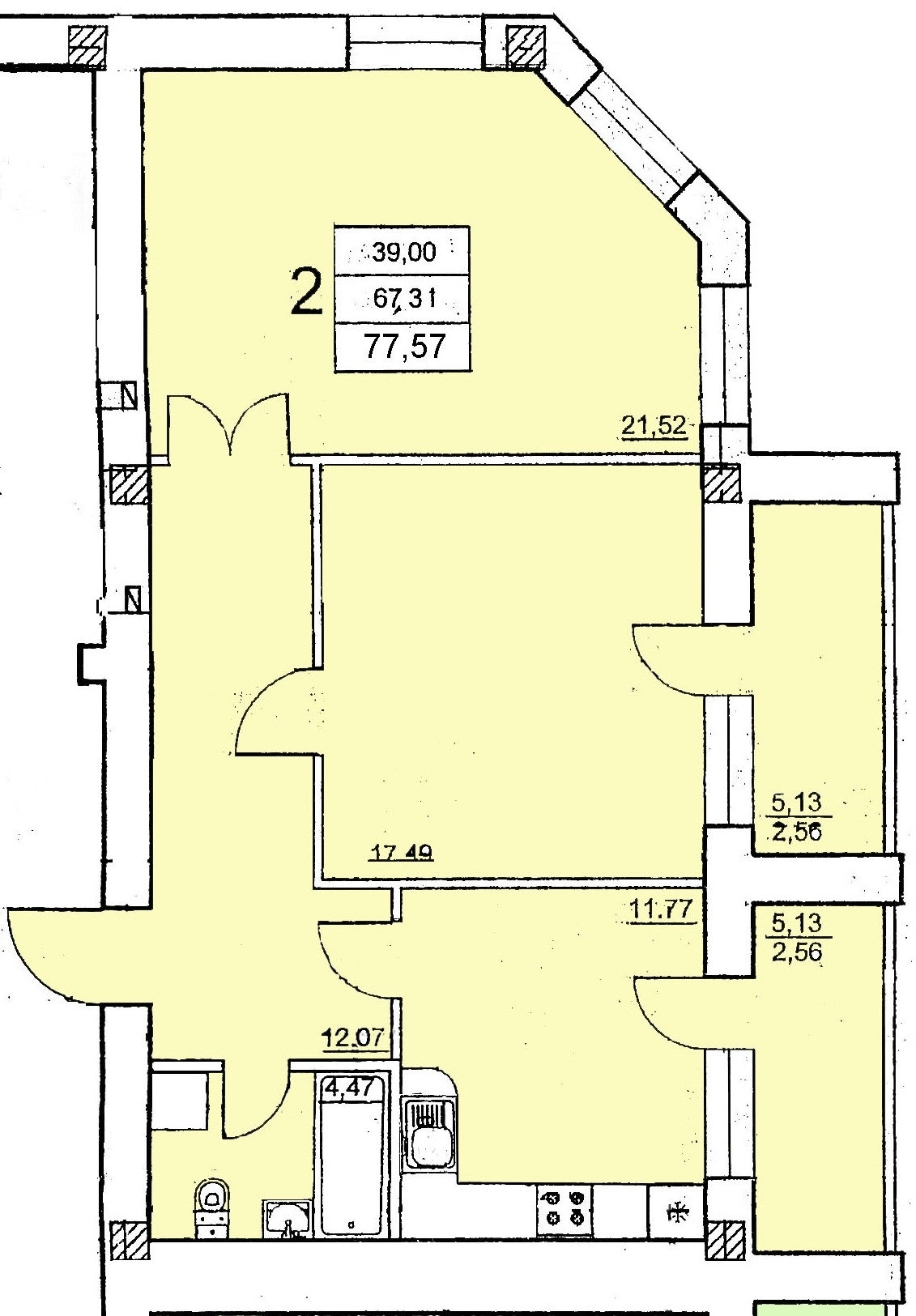
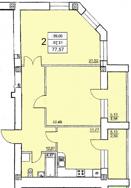
  • Площа77
  • Поверх8 / 9
  • Тип плануванняРаздельные комнаты
  • Тип будівліНовострой
  • Тип стінКирпичный
  • Тип віконПластиковые
  • ОпаленняАвтономное
  • Раздельный санузел есть
  • Лифт есть
  • Паркинг есть

Опис

Продается 2-хкомнатная квартира в новом кирпичном доме в Малиновском районе, на ул. Ефимова. Площадь 77.57 квм, кухня 12 квм, 2 балкона, просторные раздельные комнаты. Квартира на 8-м этаже в 10-тиэтажном доме. Закрытая охраняемая территория с паркингом и детскими площадками. Рядом школы, детские сады, парки, супермаркеты, магазины, рынки. Удобная транспортная развязка.

Зв'язок з продавцем

Таисия (ріелтор)

Місцезнаходження