Характеристики

  • Кімнат2
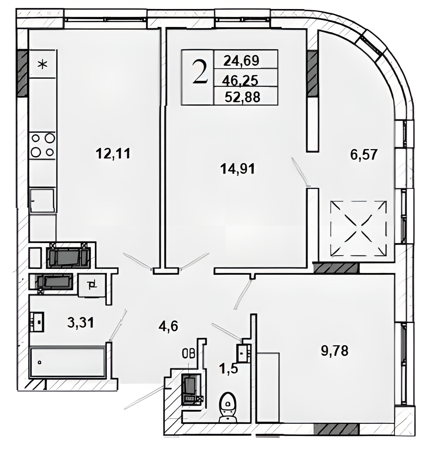
  • Площа53
  • Поверх5 / 9
  • Тип плануванняРаздельные комнаты
  • Тип будівліНовострой
  • Тип стінКирпичный
  • Тип віконПластиковые
  • ОпаленняАвтономное
  • Раздельный санузел есть
  • Лифт есть
  • Паркинг есть

Опис

ВЛАСНИК Новобудова 5 км від Оперного 2 Ізольовані кім 53м2 Замарстинівський Лісопарк
ЖК на Миколайчука 38 Без Комісії Дешевше Забудовника

Квартира на 5 поверсі з 9, дві ізольовані кімнати та окрема кухня 53м2 , дуже світла, має багато вікон.

Був укладений нотаріальний договір купна майнових прав (початок 2023року),
зі 100% оплатою на рахунок забудовника в Ощадбанку та оплатою 1% мита у нотаріуса.
В договорі прописана вартість квартири в гривнях та еквівалент в доларах.

-- ЖК 5 км від Оперного театру
-- поруч паркова зона (Замарстинівський лісопарк )
-- 2 кімнатна квартира 53 м
-- багато великих вікон
-- 5 поверх з 9
-- гарна ціна 49500дол
( в забудовника останні квартири були продані по 48000гр/ м2 )

-- опалення - економна власна газова котельня з поквартирними лічильниками тепла та регуляцією тепла на радіаторах, підключений власний генератор
(газ для дахової котельні дешевший ніж для індивідуального споживача зі своїм власним котлом)

-- паркінг підземний з ліфтом та наземні паркінги
-- нотаріальна переуступка майнових прав
-- здача будинку оголошена на 2025 рік.

Максимальне наповнення від забудовника: стяжка, штукатурка, радіатори з регулюванням температури, лічильник тепла, лічильники, комунікації заведені в квартиру.

Житловий комплекс у лісопарковій зоні Шевченківського району Львова. Унікальний рожевий фасад будинку, новітній архітектурний проект.

Комплекс включає в себе три будинки різної поверховості - 7, 9 і 16 поверхів.

У житловому комплексі передбачено дитячий садочок. На території ЖК буде розміщено Центр юнацького дозвілля, супермаркет, амбулаторія сімейної медицини,
також біля входу встановлять велопарковки.

Комплекс має зручний зв'язок із центром Львова. Від найближчої зупинки ходять автобус №184-а та №46 .

Недалеко ТРЦ Спартак з кінотеатром, спортзалом/басейном, магазинами, краща у Львові лікарня швидкої допомоги та дитяча клінічна лікарня, середня школа 97 ( вул. Миколайчука, 18), два великі продовольчі ринки..

Зв'язок з продавцем

Svitlana (власник)

Місцезнаходження