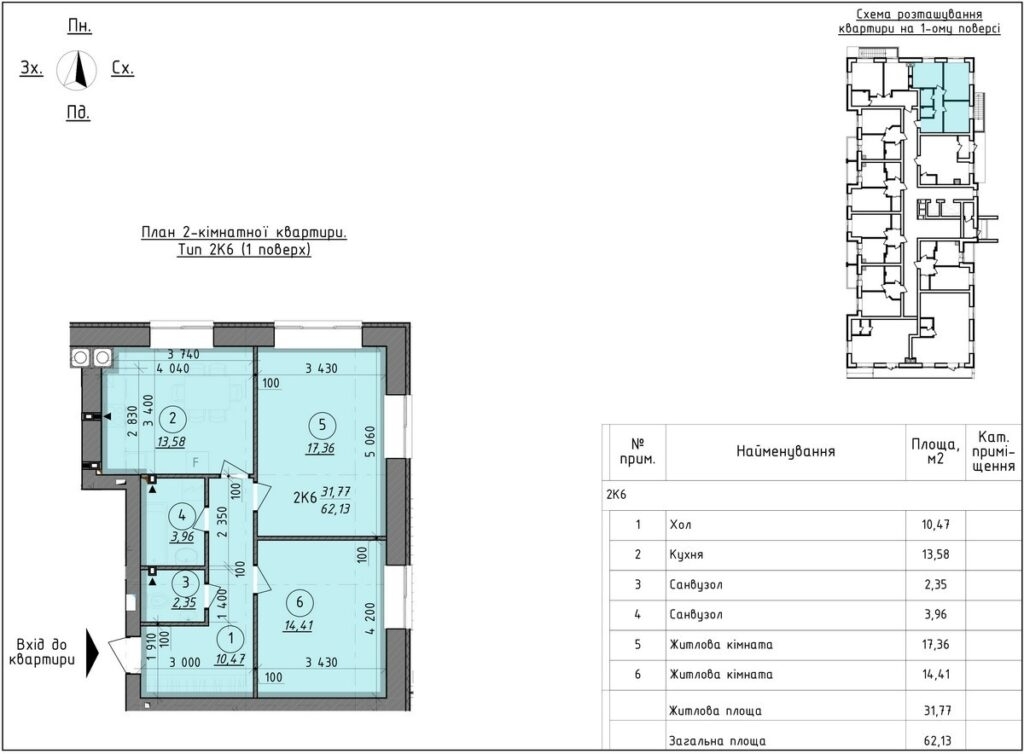
Характеристики

  • Кімнат1
  • Площа63
  • Поверх2 / 11
  • Тип плануванняРаздельные комнаты
  • Тип будівліНовострой
  • Тип стінКирпичный
  • Тип віконПластиковые
  • ОпаленняИндивидуальное

Опис

ЖК «Французский бульвар» ,г.Вышгород, ул. Шолуденко 24, который состоит из восьми 8 (восьми ), 11 этажных кирпичных домов, расположенного в 8 км. от Киева (Оболонский район), 15 минут от метро Героев Днепра - Петровка.

Выгодные условия рассрочки от застройщика:
- 0% годовых на 24 платежа
- без справки о доходах
- возможность досрочного погашения
- возможность отсрочки платежей.

- кирпичные дома
- индивидуальное отопление
- в городе своя Вышгородская набережная, Киевское море и Днепр
- 10 минут до парка «Межигорье»

Комплектация квартиры:
лазерная, финишная стяжка пола/черновая отделка стен, входная металлическая дверь, разведена сантехника по стоякам , панорамные металлопластиковые окна , высота потолков 2.70, счетчики: газ, вода электричество; двухконтурный газовый котел, электрика до квартиры, лифты.
Предусмотрено видео наблюдение, наземный паркинг, парковая зона, озеленение и благоустройство двора, детские и спортивные площадки. Все коммуникации городские, внесены в генплан города Вышгород. Земля выкуплена и собственности застройщика. Компания «Проф-Групп»

Зв'язок з продавцем

PROF-GROUP (власник)

Місцезнаходження