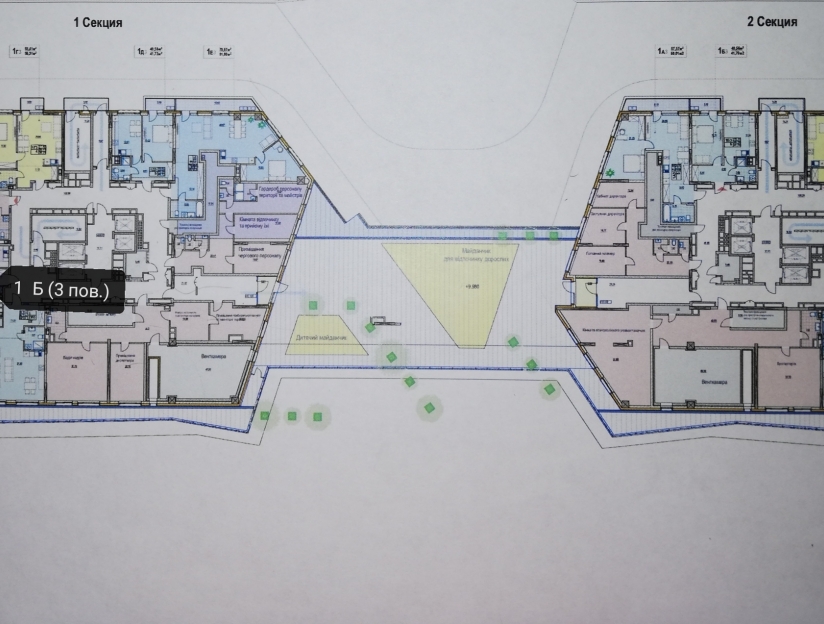
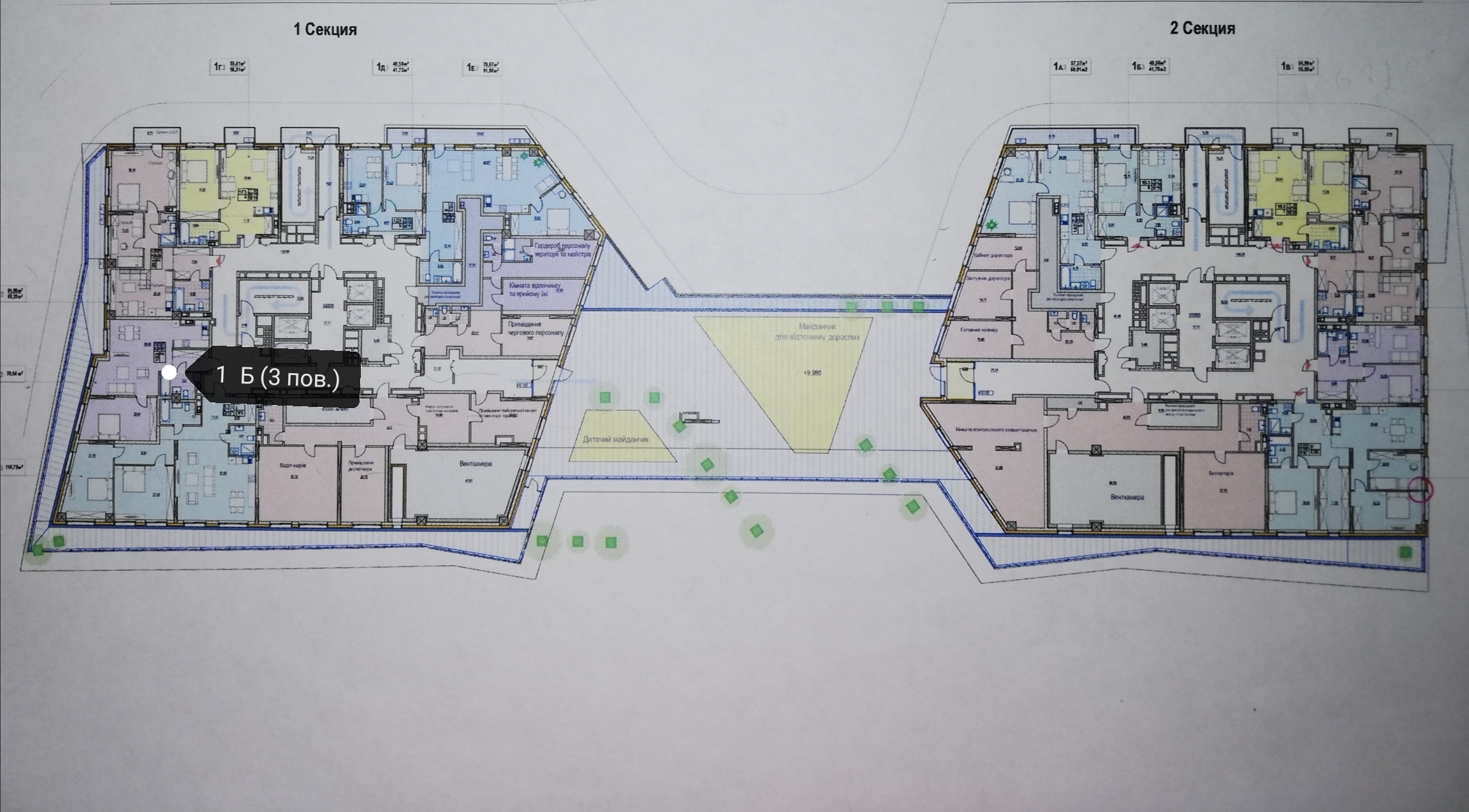
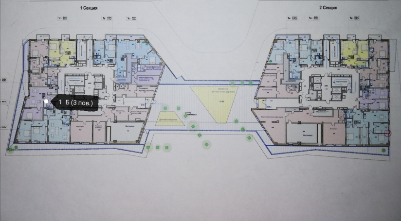
Характеристики

  • Кімнат2
  • Площа71
  • Поверх3 / 31
  • Тип плануванняРаздельные комнаты

Опис

Трирівневий підземний паркінг з ліфтом на Ваш поверх. Цілодобова Охорона. Відеонагляд. Закрита клубна територія. Вікна виходять на центр Києва. Спортивний комплекс SportLife та дитячий садок в будинку. В Лаунж зону в стелобіті можна потрапити з квартири без ліфта.

Зв'язок з продавцем

Сергій (власник)

Місцезнаходження