Характеристики

  • Кімнат2
  • Площа76
  • Поверх4 / 17

Опис

Продам квартиру в новострое ЖК "Павловский квартал" в районе м. "Научная".
Дом бизнес-класса, построен монолитно-каркасным способом, утеплён минеральной ватой.
Отличный район, хорошая транспортная развязка, до станции метро "Научная" 10 минут пешком, под домом остановка маршруток, напротив дома супермаркет "Восторг", рядом фитнес-клуб "Йодо", школы, садики.
От самого надёжного застройщика "Жилстрой 2".
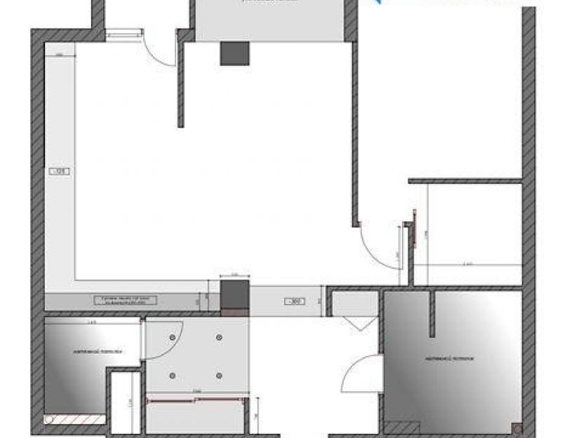
Первая секция, 4й этаж. Окна поменяны на лучшие. Перепланировка.


Дополнительная информация:

Тип стен - монолитно-каркасный
Год постройки - Сдача в 2017
Отопление - централизованное


Особенности планировки - черновая отделка


Теги сообщения:

купить квартиру ул. Клочковская, ЖК Bauhaus в Харькове, купить квартиру в районе Павловки, купить квартиру, купить 2 комнатную квартиру Харьков, стоимость квартир в Харькове, продажа квартир без посредников Харьков


Зв'язок з продавцем

Танюшка Степаненко (власник)

Місцезнаходження