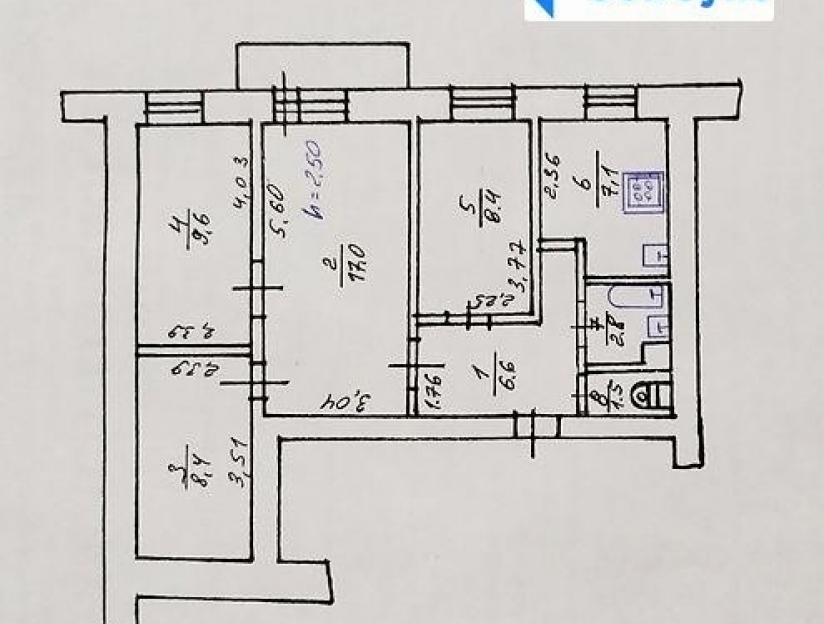
Характеристики

  • Кімнат4
  • Площа63
  • Поверх3 / 4

Опис

4х квартира 3п/5п
по Грушевського(р-н Осаулу)
з можливістю переплануванння в велику 3х
квартира потребує кап ремоту


Дополнительная информация:

Тип стен - кирпич
Отопление - централизованное


Теги сообщения:

продажа квартир ул. Михаила Грушевского, продажа квартир Дрогобыч, ЖК Софиевка в Львове, купить квартиру


Зв'язок з продавцем

Женя (агенство)

Місцезнаходження