Характеристики

  • Кімнат4
  • Площа84
  • Поверх1 / 4

Опис

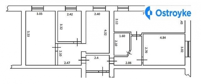
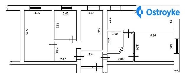
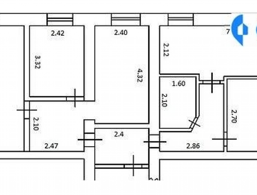
Продам 4-х комнатную квартиру в Арцизе-2 (военный городок). В квартире: 4 комнаты правильной формы, большая кухня (площадь 15.5 метров), собственное отопление (котел на твердом топливе + электроотопление (автоматически включается в ночное время), двухтарифный счетчик, кондиционер, металлопластиковые окна с решетками, бойлер, бронированная дверь, новая сантехника, проведена новая электрика, счетчик на воду. В кухне есть большая кладовая (3 квадратных метра). Квартире требуется небольшой косметический ремонт (ванная полностью сделанна).


Дополнительная информация:

Тип стен - кирпич
Год постройки - 1970-1979
Отопление - индивидуальное


характеристика гаража - подвал / погреб
характеристика здания - состояние дома и подъезда: отличное
характеристика помещения - планировка: смежно-раздельные комнаты • особенности планировки: перепланировка • высота потолка: 2.5 • состояние квартиры: требует ремонта / без ремонта / ремонт не закончен • идет ремонт
вода - централизованное (водопровод)
двери и окна - входная дверь: бронированная
отопление - твердотопливный котел • индивидуальное электрическое


Теги сообщения:

ЖК Сорок девятая жемчужина в Одессе, продажа квартир Арциз, куплю квартиру, продажа квартир район Арциз


Зв'язок з продавцем

Вадим (власник)

Місцезнаходження