Характеристики

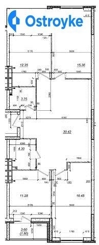
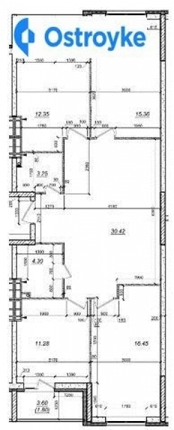
  • Кімнат3
  • Площа97
  • Поверх25 / 25

Опис

ЖК Одеський Бульвар. Ключи на руках, дом сдан и введен в эксплуатацию, люди уже делают ремонты. Квартира на 25 этаже. До метро Теремки 1.5км. В скором времени планируется закрытая территория и пешеходная дорога к метро. В пешей доступности Sportlife, Фора, Новая Линия. Квартира от надежного застройщика Атлант. Сейчас у него такие на 200 тыс дороже, если не боитесь высоты, то это отличная возможность сэкономить серьезную сумму денег. Продаю так как решил добавить и взять ближе к месту работы. Если на сдачу, то квартира элементарно делится на 2 по 45 метров, там могут быть два раздельных туалета и кухни. Переоформление через договор купли-продажи, право собственности в процессе. Все сопутствующие расходы по переоформлению плачу я.


Дополнительная информация:

Тип стен - газоблок
Год постройки - Сдача в 2018
Отопление - централизованное


Особенности планировки - без мебели • черновая отделка
характеристика здания - состояние дома и подъезда: хорошее
характеристика помещения - планировка: раздельные комнаты • высота потолка: 2.5 • состояние квартиры: черновые работы / строительная отделка • утепление: внешнее
отделка потолка - нет
пол (покрытие) - стяжка
внутренняя отделка - черновая штукатурка
вода - централизованное (водопровод)
отопление - централизованное


Теги сообщения:

стоимость квартир в Киеве, продажа трехкомнатной квартиры в Киеве, продажа квартиры от хозяев в Киеве, купить квартиру


Зв'язок з продавцем

Вадим (власник)

Місцезнаходження