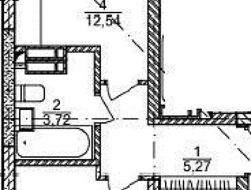
Характеристики

  • Кімнат1
  • Площа38
  • Поверх3 / 8

Опис

Ваша майбутня квартира — це місце щастя та відпочинку. Тому у нас тверезий погляд на те, як треба використовувати простір в квартирі. На наших планах ви не знайдете безглуздо довгого нефункціонального коридору чи величезної спальні, де можна поставити лише ліжко та  шафу. Квартира — це більше, ніж місце для сну. Тому ми інвестуємо квадратні метри туди, де ви справді будете жити — вітальня, кухня, кабінет чи дитяча — у нас цілих 30 варіантів планування. Розстрочка до 2 років без прив'язки до гривні. Нашою метою завжди було створення максимально комфортного житла для наших мешканців. Тому у наш новий проект ми акумулювали весь накопичений досвід.


Дополнительная информация:

Тип стен - пеноблок
Отопление - индивидуальное


Теги сообщения:

куплю квартиру, куплю 1 комнатную квартиру в Ирпене, продажа квартиры в Ирпене, стоимость квартир в Ирпене


Зв'язок з продавцем

Дмитрий Novobud (ріелтор)

Місцезнаходження