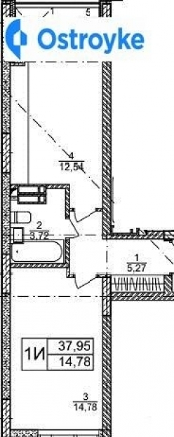
Характеристики

  • Кімнат1
  • Площа38
  • Поверх4 / 8

Опис

Ваша будущая квартира - это место счастья и отдыха. Поэтому у нас трезвый взгляд на то, как надо использовать пространство в квартире. На наших планах вы не найдете бессмысленно долгого нефункционального коридора или огромной спальни, где можно поставить только кровать и шкаф. Квартира - это больше, чем место для сна. Поэтому мы инвестируем квадратные метры туда, где вы действительно будете жить - гостиная, кухня, кабинет или детская - у нас целых 30 вариантов планировки. Рассрочка до 2 лет без привязки к гривне. Нашей целью всегда было создание максимально комфортного жилья для наших жителей. Поэтому в наш новый проект мы аккумулировали весь накопленный опыт.


Дополнительная информация:

Тип стен - пеноблок
Отопление - индивидуальное


Теги сообщения:

продажа квартиры в Ирпене, купить квартиру, стоимость квартир в Ирпене, продажа однокомнатных квартир в Ирпене


Зв'язок з продавцем

Дмитрий Novobud (ріелтор)

Місцезнаходження