Выбор сортировки

Миргород, Магистральная, 36
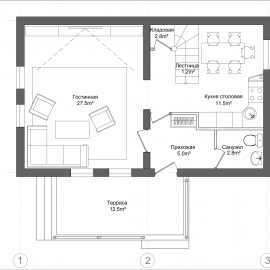
Продам дом в Миргороде
17 675 $ / 742 627 грн
98/-/- м2
4 комнаты
Продається 2х поверховий будинок в мальовничому районі міста-курорту Миргорода, площею 98 кв. м.Будинок побудований за індивідуальним архітектурним проектом з урахуванням особнностей земельної ділянки, стіни зведені з газобетонних блоків Hetten D500 на клею Hetten для газоблоку, дах утеплена мінераловатним утеплювачем ISOVER товщиною 150мм.Об'ємно-планувальне рішення передбачає зонування будинку. Денна зона, перший поверх, включає в себе прихожу, гостьовий санвузол, простору кухню та велику вітальню кімнату площею 27м2. Нічна зона, другий поверх, це три спальні і велика ванна кімната для членів сім'ї.Поверхи пов'язані сходами виконаної за дизайнерським проектом. Газ, опалення, електрика, каналізація підключені і введені в експлуатацію.Опалення і підігрів води будинку забезпечує газовий котел.На першому поверсі передбачена система теплої підлоги.Другий поверх опалюється сталевими радіаторами.На території ділянки є своє озеро.Участок12соток.Ціна договірна.

Миргород, Продаю 3к квартиру 66 кв. м, пров. Різницький 15 в районе Миргород в Миргороде
пров. Різницький
15 102 $ / 634 553 грн
66/39/9 м2
3 комнаты
Дополнительная информация:
Тип стен - кирпичГод постройки - Сдача в 2019Отопление - индивидуальное
Особенности планировки - с мансардой
Теги сообщения:
куплю квартиру, продажа квартиры от хозяев Миргород, продажа трехкомнатной квартиры Миргород, продажа квартиры Миргород, ЖК Петровский квартал в Полтаве

Миргород, Продаю 2к квартиру 50.2 кв. м, П.Мирного в районе Миргород в Миргороде
П.Мирного
13 712 $ / 576 150 грн
50/31/31 м2
2 комнаты
Срочно (переезд) продам квартиру в центре (рядом курортная зона), речка, уютный тихий двор. Хорошее жилое состояние, комнаты раздельные, окна металлопластиковые, поменяны трубы, установлены счетчики, балкон современно остеклен. Квартира очень теплая, не угловая, есть подвал, в подъезде чисто.
Дополнительная информация:
Тип стен - кирпичОтопление - централизованное
характеристика гаража - подвал / погребхарактеристика помещения - планировка: раздельные комнаты
Теги сообщения:
ЖК Петровский квартал в Полтаве, продажа квартиры Миргород, куплю квартиру, куплю квартиру в районе Миргорода, куплю 2-комнатную квартиру Миргород

Миргород, Продаю 1к квартиру 39 кв. м, Гоголя в районе Миргород в Миргороде
Гоголя
11 350 $ / 476 900 грн
39/37/8 м2
1 комната
Продам 1-кімнатну квартиру в Миргороді, район шк№5. Квартира кутова, на 3_му поверсі. Вікна пластикові, сантехніка нова, лічильники на воду і газ. Можливий обмін на 3-кімнатну або будинок з моєю доплатою. Решта деталей по телефону.
Дополнительная информация:
Тип стен - кирпичОтопление - централизованное
Теги сообщения:
продажа квартиры в Миргороде, продажа квартиры в районе Миргорода, продажа однокомнатной квартиры в Миргороде, купить квартиру

Миргород, Продаю 3к квартиру 60 кв. м, Гоголя в районе Миргород в Миргороде
Гоголя
9 916 $ / 416 625 грн
60/42/9 м2
3 комнаты
Продається 3-кімнатна у Миргороді. Квартира зі всіма зручностями, кімнати роздільні, розташована на 1 поверсі 2 поверхового будинку, який розташовано на центральній вулиці Миргорода, але в дуже зручному й затишному подвір’ї. У дворі гараж, плодові дерева й палісадник. Близько річка, зона відпочинку, курорт, магазини, зупинка автотранспорту.
Дополнительная информация:
Тип стен - кирпичОтопление - централизованное
Теги сообщения:
куплю квартиру, куплю квартиру район Миргород, продажа квартиры без посредников Миргород, куплю 3 комнатную квартиру Миргород

Миргород, Продаю 1к квартиру 30 кв. м, Гоголя 72 в районе Миргород в Миргороде
Гоголя
9 014 $ / 378 750 грн
30/17/7 м2
1 комната
Пластиковые окнаС кондиционером Газовая колонкаПрисутствует мебель, телевизор, ноутбук.
Дополнительная информация:
Тип стен - кирпичОтопление - централизованное
Особенности планировки - черновая отделкакоммуникации - газ: есть • TV: кабельное • интернет: проводной • телефон: нет • вентиляция / кондиционирование: кондиционер(ы)вода - централизованное (водопровод)подогрев воды - колонкадвери и окна - входная дверь: деревянная двойная • тип окон: металопластиковые • окна выходят на востокотопление - централизованноепомещения - санузел: совмещенный • балкон(ы): 1оборудование • мебель • удобства - телевизор • ванна • газовая плита • духовка • диван / мягкий уголок • счетчик на электричество • счетчик на газ • кондиционерположение и окружение - тип двора: проходнойдо центра города - удаленность: до 5-ти минут • как добираться: пешкомшкола - удаленность: до 5-ти минут • как добираться: пешкомдетский сад - удаленность: до 10-ти минут • как добираться: пешкомавтовокзал - удаленность: до 15-ти минут • как добираться: пешкомжд вокзал - удаленность: до 15-ти минут • как добираться: на транспортебольница - удаленность: до 15-ти минут • как добираться: пешкоммагазин • рынок - удаленность: до 5-ти минут • как добираться: пешкомближайшая зона отдыха - тип: парк • удаленность: до 5-ти минут • как добираться: пешком
Теги сообщения:
продажа однокомнатных квартир в Миргороде, продажа квартир в районе Миргорода, купить квартиру, ЖК Петровский квартал в Полтаве, продажа квартир без посредников в Миргороде

Миргород, Продаю 3к квартиру 76 кв. м, в районе Миргород в Миргороде
10 988 $ / 461 700 грн
76/51/8 м2
3 комнаты
3х комнатная квартира в тихом районе города курорта, большой утепленный балкон
Дополнительная информация:
Тип стен - кирпичОтопление - централизованное
Теги сообщения:
куплю квартиру в районе Миргорода, куплю 3 комнатную квартиру Миргород, ЖК Петровский квартал в Полтаве, продажа квартир Миргород, куплю квартиру

Миргород, Продаю 2к квартиру 45 кв. м, П. Мирного в районе Миргород в Миргороде
П. Мирного
17 350 $ / 729 000 грн
45/7/7 м2
2 комнаты
Впервые в продаже 2–х комнатная Квартира с ремонтом в центре города. ул. П. Мирного, 3 этаж 5-ти этажного дома. АВТОНОМНОЕ отопление, встроенная кухня (газ.поверхность, электродуховка, холодильник, микроволновка, посуда), санузел раздельный (ванная, стиральная машина). Балкон и Окна остеклены МПО. В зале установлен кондиционер. До курорта 5 минут, до пляжа - 3 минуты. Школа и садик - 2 минуты. Возможен торг, небольшой.
Дополнительная информация:
Тип стен - кирпичОтопление - индивидуальное
Теги сообщения:
продажа квартир Миргород, куплю квартиру, ЖК Петровский квартал в Полтаве, продажа 2 комнатных квартир Миргород, продажа квартир район Миргород

Миргород, Продаю 1к квартиру 42 кв. м, Комышнянская 139 в Миргороде
Комышнянская
10 121 $ / 425 250 грн
42/-/- м2
1 комната
Дополнительная информация:
Тип стен - кирпичГод постройки - 1990-2000Отопление - централизованное
Теги сообщения:
купить квартиру, ЖК Петровский квартал в Полтаве, продажа 1-комнатной квартиры в Миргороде, продажа квартир в Миргороде